PvE versie 2.0
Aan : Ontwerpteam Huis van Stad en Regio, Dordrecht
Van : Joris van de Looij
Datum : 08 juli 2022
Telefoon : 06 51033652
Onderwerp : PvE Ingenieursbureau Drechtsteden versie 2.0 (8 juli 2022)
Inleiding
Het Ingenieursbureau Drechtsteden (IBD) wordt toegevoegd aan het programma van het Huis van Stad en Regio. In verkennende gesprekken met Workwire aangeven hoe het IBD werkt in de huidige kantooromgeving. Dit is goed verwoord in de bijlage: 2022-04-14 Programma van Eisen Plateaugebouw IBD
Deze memo geeft een korte aanvulling op de eerdere PvE van 14-04-2022
Uitganspunten IBD
1. Het IBD personeelsbestand fluctueert tussen de 75 en 100 fte.
2. Flexfactor 0,5
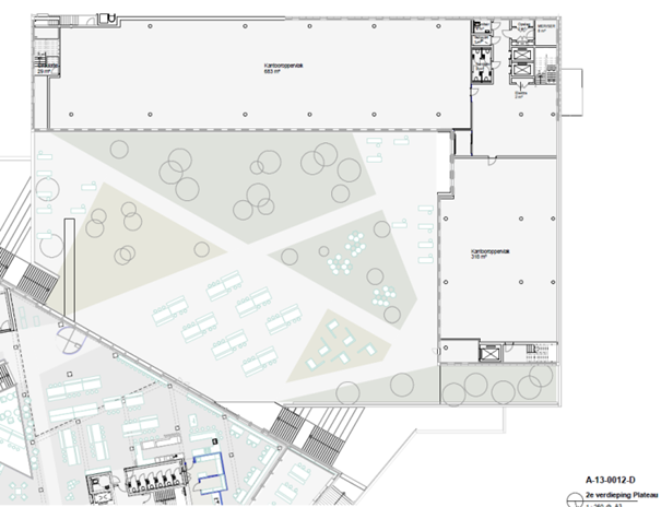
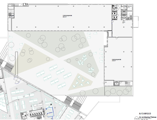
3. Huisvesting van het IBD in het Plateau, bij voorkeur aansluitend op de binnentuin.
4. Beschikbaar vloeroppervlak voor het IBD 683 m2
5. Voor grotere overleggen met meer dan 8 personen kan het IBD gebruik maken van het vergadercentrum in het hoofdgebouw.
6. Een drietal overlegruimten waar met 6 personen vergaderd kan worden over projecten. Twee gekoppelde projectiemonitoren en één whiteboard per ruimte. Inclusief hybride vergaderfaciliteiten.
7. Beschikbare overige voorzieningen zoals: pantry, lockers en plotter- en printer ruimtes zijn aanwezig.
8. Twee afsluitbare voorraadruimtes voor kostbaar materiaal (camera's, drones, laptops en elektronica)
9. Vier belruimten, waar ook met de laptop (MS Teams) vergaderd kan worden.
Het IBD kiest voor 'reverse engineering'. Hoe kunnen we met het ontwerpteam zo veel mogelijk hoogwaardige kantoorinrichting inpassen in de beschikbare 638 m2?

No comments to display
No comments to display